15 APPALOOSA DRIVE, Branyan
NEAR NEW HOME ON ACREAGE BLOCK IN POPULAR ESTATE




























Description
A family’s circumstances have changed meaning that this near new and nearly completed brick home sitting on 4072m2 (over an acre) in a popular estate in Branyan is now presented to the market for sale. The finishing touches required can be made to your own individual needs.
This steel frame home is built to maximize the east west outlook to its best advantage, this block has plenty of room for the man shed, pool and a multitude of uses that only acreage allows.
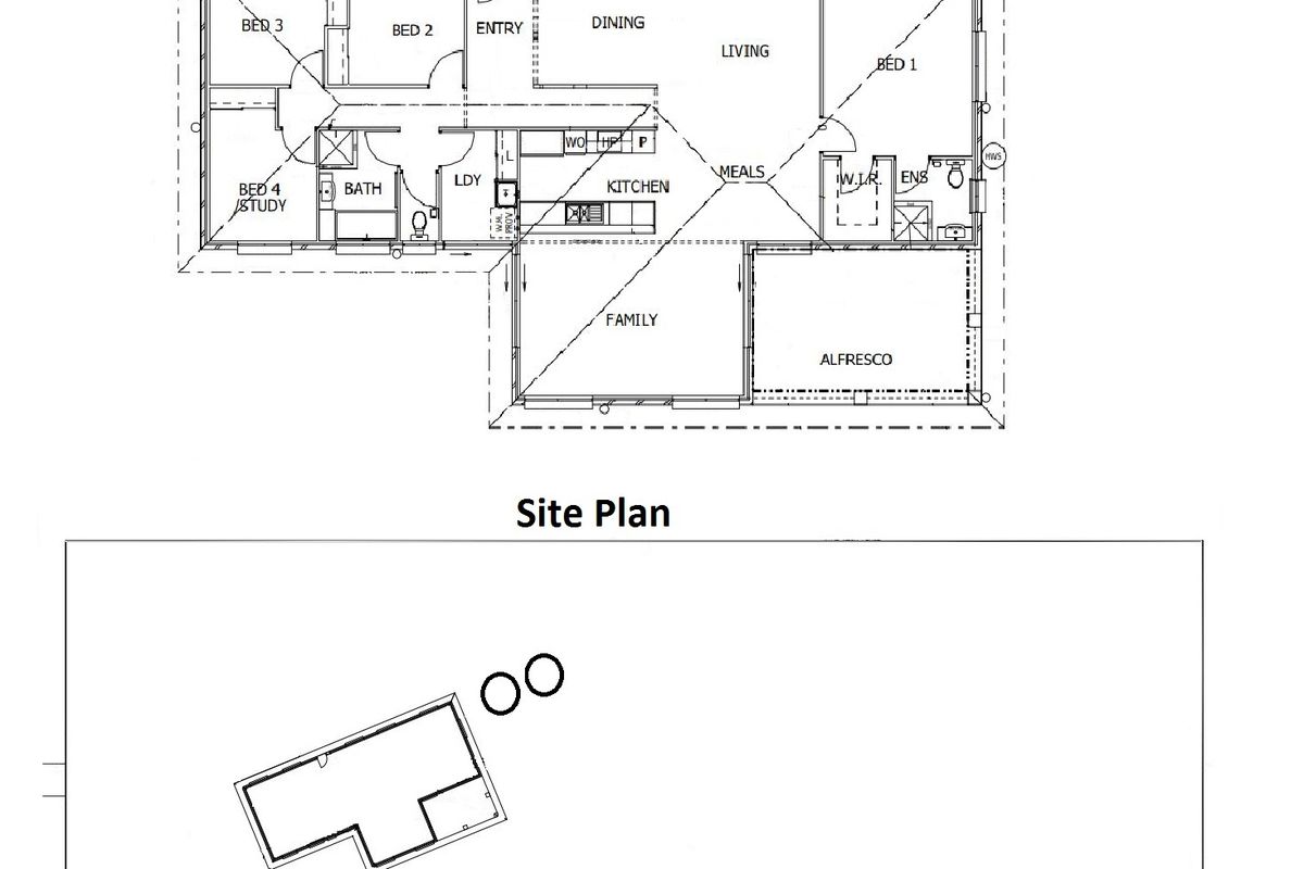
Upon entering the house, it is apparent that there is an abundance of living space with a combined L shaped lounge leading into a rumpus and dining room. This area is serviced by centrally located kitchen which offers plenty of bench and storage space. Please note that the tiling needs to be completed (they are supplied). The cook-top and wall oven are new and unused. The large main bedroom leads off this area and is separated from the 3 other bedrooms. The main bedroom offers a large walk-in-robe and a well appointed en-suite.
Located at the other end of the house, the 3 remaining bedrooms offer ceiling fans, carpet and built in wardrobes. They are serviced by a bathroom with deep bath and separate shower and solar hot water. There is a separate toilet for privacy and convenience.
Outside, there are 2 large rainwater tanks for ample storage. There is a new Aqua-Nova Evergreen organic septic system. A bore has been drilled, it just requires the appropriate infrastructure.
Having been 'handed over' in February 2019 by Dixon Homes, this property offers the balance of new home warranty and other Quality Assurances.
Acreage living is highly desirable in this established estate. Call Exclusive Listing Agent Greg McMahon to secure a private inspection.
Your email address will not be published. Required fields are marked *